The Office , Rhiwlas LL23

The Office , Rhiwlas LL23

578 sq ft (53.7 sq m)

The Bull 0.4 miles

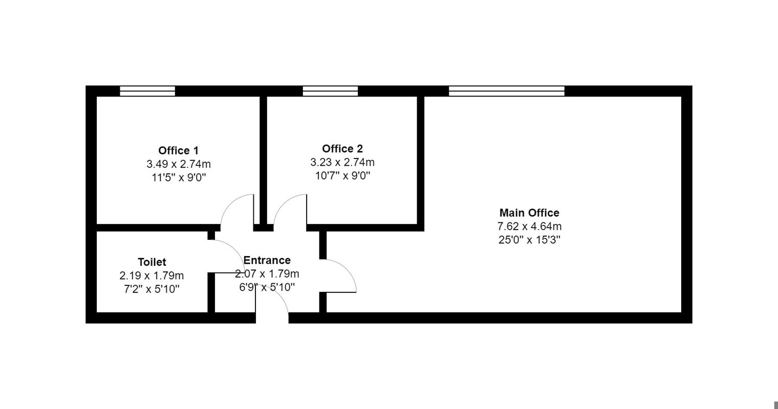
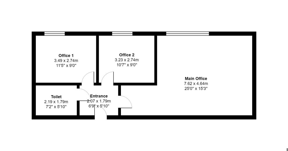
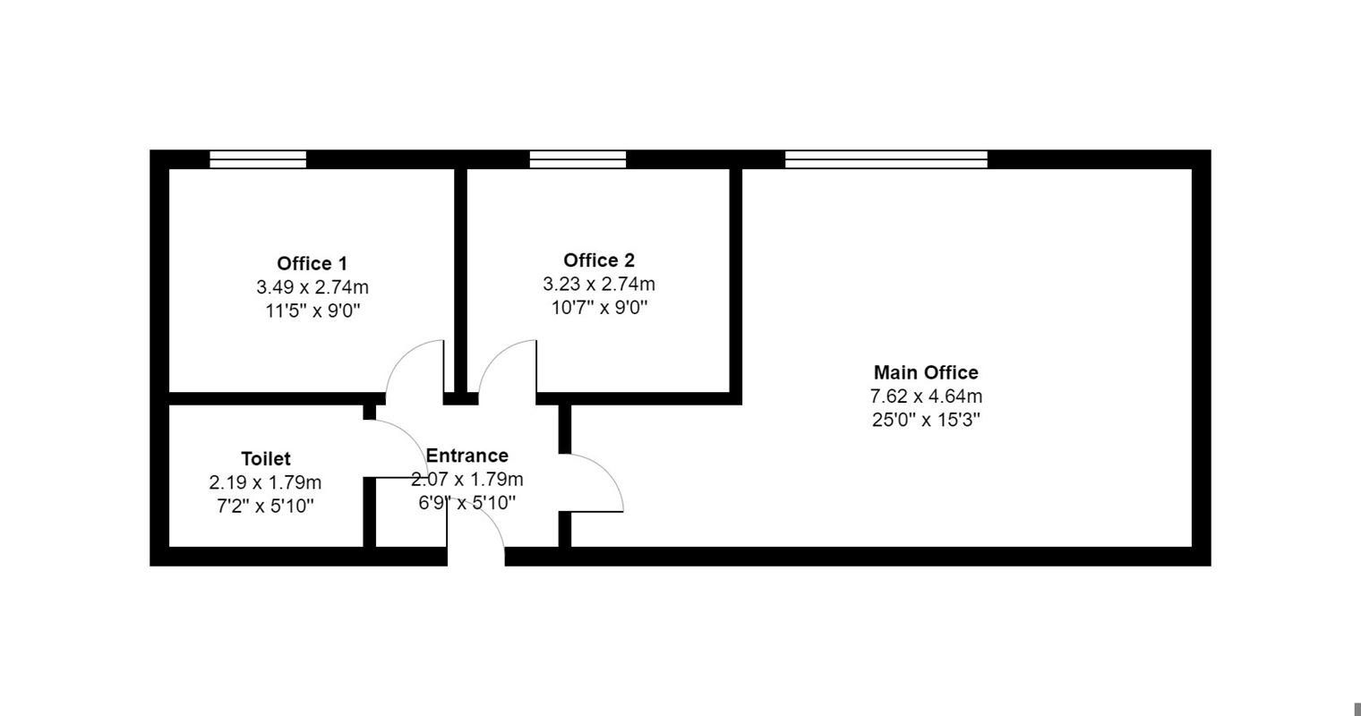
The Office provides modern self contained ground floor office accommodation within the Ysgubor Isaf complex. The accommodation extends to a main office suite with two additional offices or meeting rooms. There is also a WC and entrance foyer.
The space benefits from excellent natural daylight and enjoys pleasant views out over the wider green space at Ysgubor Isaf and the surrounding countryside.

Key features of the office space:
- Modern office accommodation extending to approximately 578 sq ft (53.57 sq m)
- Generous on site parking provision
- Situated within a wider visitor centre with attractive green space and on site facilities
- Available immediately

Key Features

  • This property energy rating is B - 41

Location

The Office is within walking distance of popular market town of Bala situated on the edge of Llyn Tegid. The town is easily accessible from the A494 and A5. Bala benefits from a wide range of services including a wide variety of local and national retailers, public houses, restaurants, a banking facility and post office.

Key property details
Tenure
Leasehold £7,250 Per Annum Exclusive
Size
578 Sq Ft 53.7 Sq M
Type
Offices
Service charge
£50 per annum
Carter Jonas reference
20015989
Property agent
Elis Jones
Thinking of selling?

Find out what your property is worth