Residential Development Site At Coombe Hill, Coombe Hill BA10

Residential Development Site At Coombe Hill, Coombe Hill BA10

Freehold | 1.4 acres (0.579 hectares)

A rural development site for two substantial detached dwellings in an elevated position on the edge of the fashionable town of Bruton. In all extending to about 1.43 acre. For sale by online auction with an auction finish time of 4pm on Tuesday 20th August 2024.

Location
The site is in an elevated position on Coombe Hill with far reaching views, situated on the edge of the sought-after town of Bruton.

Bruton offers a range of facilities including a range of shops, a petrol station, Post Office, doctor’s surgery, and a mainline train station, together with a number of fine dining options including Roth Bar & Grill, At The Chapel, Osip Restaurant and Matt’s Kitchen.

Large supermarkets are available at Wincanton and Shepton Mallet, whilst Gillingham and Sherborne are also within easy reach.

The cities of Bath, Bristol, and Salisbury are all within about one hour’s drive of the property.

Bruton is home to a highly regarded independent school, King’s School Bruton, as well as comprehensive boarding school, Sexey’s. In addition, the town has its own primary school and pre-schools/nursery.

The Newt in Somerset, a magnificent hotel, restaurant, and country estate with exceptional woodland and gardens, is located on the outskirts of Bruton. Charlton House Hotel with restaurant and spa (Shepton Mallet), and Babington House, the renowned private members country club (part of Soho House), are also within easy reach.

Bruton benefits from easy access to the A303 (seven miles) whilst trains to London Paddington are available at Bruton and/or Castle Cary station (five miles), and Bristol International Airport is also within easy reach (30 miles).


Property
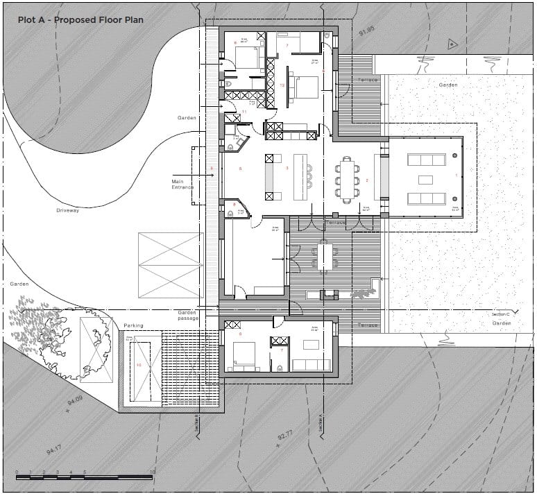
The site has the benefit of detailed planning permission for the erection of two detached dwellings. Each of the dwellings has a proposed gross internal area of about 200sqm/2,153sqft including a one-bedroom annexe, plus a detached garage of about 40sqm/431sqft. Details of the proposed accommodation are included on the floor and site plans below.


Method of Sale
The property is offered for sale by online auction with a guide price* of £500,000. The property will be sold subject to a reserve price**. For further information, to register to bid, and review the auction pack, visit carterjonas.co.uk/property-auctions.

*The guide price is the minimum price at which the seller is prepared to sell at the date of publication.
**The reserve price is the minimum price at which the auctioneer is authorised by the seller to sell the lot at auction. The lot may be sold to the highest bidder at or above the reserve price but the auctioneer is not authorised to sell at a figure below the reserve price. Both the guide price and the reserve price are subject to change.

Potential purchasers should ensure that they register their interest in the property and regularly check for updated information regarding the property, including changes to the guide price.


Planning
Somerset Council granted planning permission for the erection of two dwellings with associated access and landscaping under application reference number 20/03493/FUL in September 2023. Condition 10 of the planning permission sets out that development shall not commence until a Memorandum of Understanding has been completed in a form acceptable to the Council’s solicitor(s) to ensure the Phosphate Mitigation Strategy is completed in accordance with the Nutrient Neutrality Assessment and Mitigation Strategy which was prepared by Halpin Robbins to accompany the application. The Vendor has planted the phosphate mitigation habitat adjoining the site and will complete the Memorandum of Understanding prior to completion of the sale.


Services
The water and drainage search for the site shows that mains water is available in the road and there is a pipe running through the site, with mains drainage also available in the road to the south. Mains electricity is available in the vicinity of the site. Potential purchasers should make their own enquiries in relation to the availability and capacity of the required service connections for the site.


Health & Safety
Potential purchasers should take particular care when inspecting the site, being mindful of uneven and slippery ground surfaces.


Local Authorities
Somerset Council (formerly South Somerset District Council)


Viewings
Potential purchasers may view the site unaccompanied with a set of the sales particulars in hand, after informing the selling agents, Carter Jonas, on 01823428590.


Directions
Following the A359 through Bruton towards Frome, turn left onto Coombe Street and follow this road up and out of the town. At the fork in the road, turn right and the field gate into the land will be found on the right-hand side by the property called Overdale.


What3Words
///dispenser.script.fetching

Key property details
Tenure
Freehold
Size of land
1.4 acres (0.579 hectares)
Carter Jonas reference
TAU230121

Suggested properties

Here are a few properties you might like, but within 2 extra miles of your current search

5,239 Sq Ft (486.7 Sq M)
Commercial Development & Land
5,239 Sq Ft (486.7 Sq M)
Commercial Development & Land
2.1 hectares (5.3 acres)
Commercial Development & Land
Guide price £575,000 0.86 acres (0.348 hectares)
Development Land
2 to 9.2 acres (0.809 to 3.7 hectares)
Commercial Development & Land
1,000 to 250,000 Sq Ft (92.9 to 23,225.8 Sq M)
Commercial Development & Land
1 to 35 acres (0.405 to 14.2 hectares)
Commercial Development & Land
2,305 to 11,565 Sq Ft (214.1 to 1,074.4 Sq M)
Commercial Development & Land
2.1 acres (0.85 hectares)
Commercial Development & Land
0.843 acres (0.341 hectares)
Commercial Development & Land
Guide price £600,000 0.93 acres (0.376 hectares)
Development Land
1 to 6 acres (0.405 to 2.4 hectares)
Commercial Development & Land
Thinking of selling?

Find out what your property is worth