Development Site At Dollings Pool, Donyatt TA19

Development Site At Dollings Pool, Donyatt TA19

A well situated residential development site for six new build dwellings.

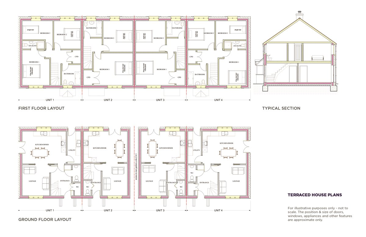
The development site at Dollings Pool Dairy comprises a former dairy farm on the edge of the South Somerset village of Donyatt with permission for the erection of two detached four bedroom dwellings together with a terrace of two no. three bedroom dwellings and two no. two bedroom dwellings.

Situation

The development site at Dollings Pool Dairy is situated on the edge of the South Somerset village of Donyatt with easy access to the A303. The local town of Ilminster is just over two miles away and offers a wide range of day to day facilities. The Somerset County Town of Taunton is also within easy reach.

The Development

The site comprises a former dairy farm with modern steel framed agricultural buildings for demolition, together with stone buildings on the southern side of the site also for demolition. A new access and associated visibility splay with the adjoining A358 will be constructed to the north of the site to service the dwellings.

Planning Permission

Planning permission was granted in April 2020 under application reference 20/00126/FUL for the demolition of existing agricultural buildings and the erection of six no. dwellings with the formation of a new vehicular access there to.

SERVICES

A Utilities Assessment report has been prepared for the site and can be provided upon request. Mains water and electricity are available in the vicinity of the site. The vendor will grant the purchaser the necessary easements in respect of these connections.

HEALTH AND SAFETY

The site currently comprises a working farmstead. Potential purchasers are therefore required to book a viewing as set out below, and to take particular care when inspecting the property, bearing in mind especially the risk of sudden movements from machinery and vehicles which may be present and operating at the time of inspection. Potential purchasers are requested to wear supportive footwear for viewings, and are advised to be conscious of potentially uneven and slippery ground surfaces.

VIEWINGS

By virtue of the fact that the site currently comprises a working farmstead, viewings are by appointment only with Carter Jonas on 01823 428590.

METHOD OF SALE

The site is offered for sale by private treaty. Offers in the region of £500,000 are invited.

DOLLINGS POOL FARMHOUSE

In addition to the development site, Dollings Pool Farmhouse is available by separate negotiation.

LOCAL AUTHORITY

South Somerset District Council.

DIRECTIONS

At the Southfields Roundabout on the A303, take the exit onto the A358 signed to Donyatt. Follow this road towards Donyatt. Shortly after passing over the A303, the entrance to the site will be found on the left hand side. The postcode of the farm is TA19 0RY.

Key property details
Carter Jonas reference
TAU200093
Thinking of selling?

Find out what your property is worth