Main Street, Fringford OX27

Main Street, Fringford OX27

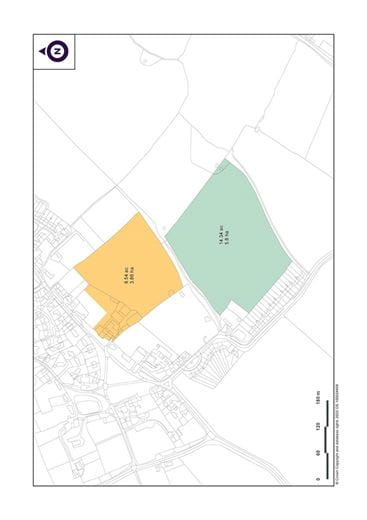
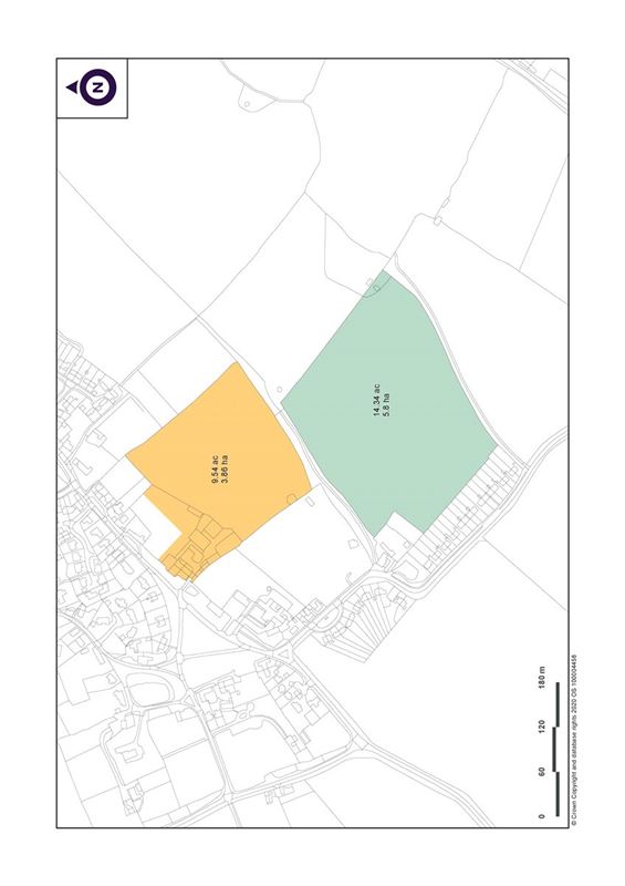
Outbuildings | 9.5 acres (3.9 hectares)

Asking price £1,350,000
Bicester North 3.7 miles
Bicester Village 4.4 miles
Braeburn Avenue 2.7 miles

An attractive farm with an extensive range of traditional buildings in a sought-after village location.

Hall Farm comprises a 6-bedroom Cotswold farmhouse with adjacent traditional buildings, modern farm buildings and pasture. The property provides excellent scope for sympathetic modernisation and enhancement throughout to form an exceptional family dwelling and ancillary space

In all extending to about 9.54 acres (3.86 ha).

For sale by Private Treaty as a whole.

PROPERTY
Lot 1 comprises a 6-bedroom Cotswold farmhouse with adjacent traditional buildings, modern farm buildings and 9.54 acres (3.86 ha) of pasture.

FARMHOUSE
Hall Farmhouse is a three-storey grade II listed period dwelling, sited adjacent to the farmyard and courtyard with a garden to the front and side. The property extends to in excess of 2,708 sq ft over three floors. Cotswold Stone built with rendering, it provides light and spacious living space together with a cellar. The handsome property retains a great deal of charm and character providing two reception rooms, kitchen, office, dining room, washroom and stores on the ground floor with 4 bedrooms and a bathroom to the first floor and 2 further loft rooms that could be utilised as an additional two bedrooms. The property is in need of modernisation or redevelopment to bring it up to current standards.

FARM BUILDINGS
Located south of the farmhouse, the farm buildings provide good mixture of traditional and modern accommodation extending to approximately 4,498 sq ft. Accessed through an archway, the courtyard of traditional buildings provides major scope for improvement and the possibility of additional uses. The buildings
consist of a Grade II listed barn and adjoining barns, car port, storage shed and larger general purpose shed. The buildings are of Cotswold stone construction with concrete floors and a mixture of clay tile, corrugated sheeting, fibre cement and slate roofs. There is also a dovecote open to the rafters located above the office in the farmhouse.

The modern buildings consist of a concrete frame general purpose agricultural building with breeze block walls, a concrete floor, Yorkshire boarding and fibre cement roof. The other being a steel portal frame grainstore with a concrete floor, corrugated tin sheeting under a fibre cement roof. Both would also lend themselves to equestrian
purposes subject to necessary permissions. There is also a pole barn situated within the yard area. The yard itself is a mix of concrete and scalping’s, providing excellent hard aprons for storage, material handling, access and parking.

LAND
Providing pasture for amenity and equestrian purposes, the land is surrounded by mature hedges and can be accessed via the farmyard.

Classified as being a mix of Grade III on the Agricultural Land Classification maps, the land is further characterised as being freely draining lime-rich loamy soils and well suited to its current use.

FENCING
On completion the Buyer of Lot 1 will be required to erect and thereafter maintain a boundary fence to the Vendors retained land to the north of the farmstead. For the avoidance of doubt the fence is to be livestock proof and of a specification not less than posts at 3m centres with galvanised sheep netting and two rails over.

BASIC PAYMENT SCHEME
Basic Payment Scheme entitlements for the claimable area are included in the sale.

ENVIRONMENTAL SCHEMES
The land is not included in any Environmental Stewardship Schemes.

LISTING STATUS
The property includes a Grade II Listed farmhouse and barn abutting to the east of the farmhouse.

OVERAGE
Lot 2 is to be sold with a 50% overage clause for 25 years.

SERVICES
Farmhouse: Mains water, electricity and drainage. Oil central heating. Broadband. Farm buildings: Mains water and electricity.

VIEWINGS
Interested parties may view the property upon appointment and accompanied by the selling agent with details to hand.

The next steps...

Before making an offer on a property you will want to consider your financial situation, your income and outgoings.

Will you finance the purchase of your next property from the sale of an existing property which can put you in a chain, arrange a mortgage through your bank or buy the property outright.

To help you finance your next property purchase, we have a long established relationship with an independent mortgage broker who can discuss your situation with you.

Remember that having a 'mortgage decision in principle' can make you a more attractive buyer when you make an offer on a property. Contact our mortgage advisers for free, no obligation and impartial advice.

Some advantages of a broker are:

  • They do all the legwork for you, working on your behalf with the lender
  • They compare wholesale mortgage rates from a large number of banks and lenders all at once
  • Their wholesale interest rates can be lower than retail (bank branch) interest rates
  • They offer more loan options because they work with numerous banks and lenders
  • They can finance tricky deals because of their knowledge and various lending partners
  • They are typically easier to get in contact with, and are less bureaucratic.

However advantages of working with your bank are:

  • You may be able to build off an existing relationship (and gain discounts if you have a checking or savings account)
  • You may already know the banker who will handle your mortgage
  • Banks may be more accountable than a smaller shop
  • They may offer lower interest rates in some cases
  • Their ability to add mortgage to existing banking profile and make automatic payments from linked account.

When you see a property you are interested in on our website, call us 24/7 to arrange a viewing. Or if you prefer, get in touch via our website and we will call you back to find a time to view the property that suits you.

Once you’ve found a property you want to buy, it’s time to make an offer. A bit of negotiation is to be expected, however don't offer so little that you end up in a lengthy negotiation process, as you might lose the property altogether if someone else makes a higher bid.

If other offers have been made on a property we aren't legally able to tell you what they are, but we may indicate if they were close to the asking price.

If you have a property to sell, why not see how we can help you.

Or if you’re considering letting your property, we can take the stress out of managing your rental, and our award winning lettings team offer a service that can be tailored to your needs.

Combined with nearly 170 years of experience and one of the highest customer satisfaction scores in the industry, Carter Jonas is the perfect property partner.

Why not book a free, no obligation valuation of your property and find out how Carter Jonas can help you make your next move.

Key property details
Additional attributes
Outbuildings Land/Paddock
Locality
Rural
Property type
Farm
Total land
9.5 acres (3.9 hectares)
Carter Jonas reference
NWR200012

Suggested properties

Here are a few properties you might like, but within 2 extra miles of your current search

Guide price £840,000 83.7 acres (33.9 hectares)
Agricultural
Asking price £350,000 29.6 acres (12 hectares)
Agricultural
Guide price £1,950,000 41 acres (16.6 hectares)
Agricultural
Thinking of selling?

Find out what your property is worth