Lots 1, 2 & 3 Leaze Farm, Lympsham BS24

Lots 1, 2 & 3 Leaze Farm, Lympsham BS24

Freehold | Outbuildings | 4.6 acres (1.9 hectares)

Guide price £600,000
Weston-super-Mare 3.5 miles
Weston Milton 4 miles
Lympsham School 0.9 miles

A detached farmhouse for renovation together with two modern farm buildings with permission for conversion and a pasture paddock. In all about 4.63 acres. Further paddock available. For sale by online auction.

Lots 1, 2 and 3: Leaze Farm, Lympsham, Western-super-Mare, Somerset, BS24 0EZ

A detached farmhouse for renovation together with two modern farm buildings with permission for conversion and a pasture paddock.

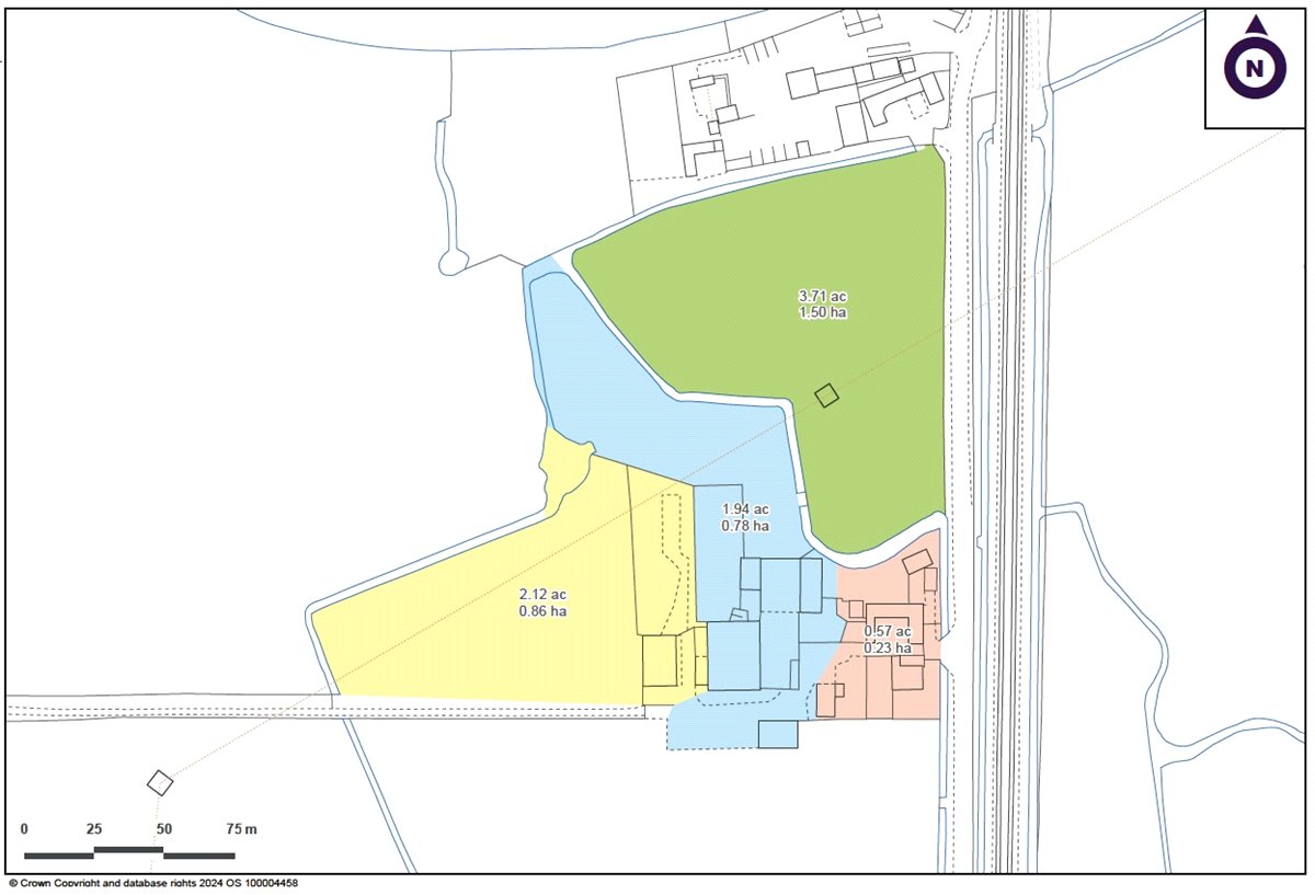
Lot 1 comprises Leaze Farmhouse and outbuildings set within 0.57 of an acre.
Lot 2 comprises a modern steel framed building with permission for conversion to a four-bedroom dwelling together with an adjoining paddock and further modern buildings. In all 1.94 acres.

Lot 3 comprises a modern livestock building with permission for conversion to a four bedroom dwelling together with an adjoining paddock. In all 2.12 acres.

Lot 4 comprises a pasture paddock extending to 3.71 acres.

For sale by online auction in up to four separate lots.


Location
Leaze Farm is located a short distance from the sought after village of Lympsham, close to Weston-super-Mare and Burnham-on-Sea. Lympsham offers a church, primary school, village hall, and Post Office, as well as tennis courts and a cricket pitch with the Lympsham Pavilion now a popular village social venue. A wider range of services are available in Weston-super-Mare and Burnham-on-Sea. There is easy access to the M5 motorway at Junction 22, with railway links at Weston-super-Mare, and Highbridge.


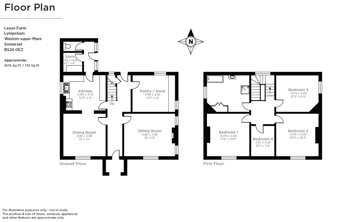
Lot 1: Leaze Farmhouse
Constructed of brick and rendered elevations under a tiled roof and requiring modernisation/renovation, Leaze Farmhouse offers accommodation comprising:
Ground Floor
– Rear entrance hall with WC off.
– Kitchen
– Dining Room
– Sitting Room
– Pantry/Office
– Front porch to entrance hall and stairs to first floor
First Floor
– Landing
– Four Bedrooms
– Family Bathroom
Outside, at the front of the property, is a lawned garden.

To the rear is a single storey u-shaped brick and tile former dairy and store forming a courtyard area. To the side of this building is a further rendered and fibre cement storage building. To the rear of the former dairy are two further part steel-clad storage buildings.

There are two further steel storage buildings to the west of the farmhouse.

In all, the farmhouse and associated outbuildings are offered within land totalling 0.57 of an acre.


Lot 2: Modern Building for Conversion, Farm Buildings, and Paddock
Lot 2 comprises the steel framed silage clamp with permission for conversion to a four-bedroom dwelling. The southern part of the building, together with the lean-to to the east, and building to the west, is due to be removed to facilitate the development.
In addition to the building for re-development, there is a timber and steel former cowstall and a three-bay steel framed former fodder store to the south included with this lot. The buildings are offered together with the former dirty water store to the west and the adjoining paddock to the north. In all, Lot 2 extends to 1.94 acres.


Lot 3: Modern Building for Conversion and Paddock
Lot 3 comprises the steel framed livestock building with permission for conversion to a four-bedroom dwelling. The southern and part of the eastern elevation is due to be removed to facilitate the development. The paddock running to the west and north of the building is included in the sale. In all, Lot 3 extends to about two acres.


Method of sale
The property is offered for sale by online auction with guide prices* for the individual lots as listed below. The property will be sold subject to a reserve price**. For further information, to register to bid, and review the auction packs, visit carterjonas.co.uk/property-auctions.
*The guide price is the minimum price at which the seller is prepared to sell at the date of publication.
**The reserve price is the minimum price at which the auctioneer is authorised by the seller to sell the lot at auction. The lot may be sold to the highest bidder at or above the reserve price but the auctioneer is not authorised to sell at a figure below the reserve price. Both the guide price and the reserve price are subject to change.

Potential purchasers should ensure that they register their interest in the property and regularly check for updated information regarding the property, including changes to the guide price.
The guide price for Lot 1 is £350,000.
The guide price for Lot 2 is £125,000.
The guide price for Lot 3 is £125,000.
The guide price for Lot 4 is £50,000.

Lot 1 will be offered for sale first with an auction finish time of midday on Wednesday 25th September 2024. The successful purchaser of Lot 1 will be offered the option to purchase Lots 2 and 3 at their combined guide price. If the purchaser of Lot 1 does not accept the option to purchase Lots 2 and 3, Lot 2 will then be offered for sale with an auction finish time of midday on Wednesday 9th October 2024. The successful purchaser of Lot 2 will be offered the option to purchase Lot 3 at the guide price. If the purchaser of Lot 2 does not accept the option to purchase Lot 3, Lot 3 will then be offered for sale separately with an auction finish time of midday on Wednesday 23rd October 2024. Lot 4 will be offered for sale with an auction finish time of midday on Wednesday 23rd October 2024. Completion of the sale of all four lots is due on 20th November 2024.


Tenure & Possession
The freehold of the property is offered for sale with vacant possession available upon completion.


Planning
Permission was granted by Somerset Council (Sedgemoor District) for the conversion of the buildings within Lots 2 and 3 in August 2024 under application numbers 31/24/00009 and 31/24/00008 respectively.


Services
Leaze Farmhouse (Lot 1) is connected to mains water and electricity with private drainage. Potential purchasers should assume that a new sewage treatment plant will need to be installed to service the farmhouse. Lots 2, 3, and 4 are sold without any services connected. Potential purchasers should make their own enquiries in relation to service connections to service these lots.


EPC Ratings
Leaze Farmhouse has an EPC rating of G.


Wayleaves Easements & Rights of Way
A right of way will be reserved through Lot 1 for the benefit of Lots 2 and 3, and in turn through Lot 2, for the benefit of Lot 3, if sold separately. A right to lay services will be granted over the land to the south of Lot 1, and over Lot 2 for the benefit of Lot 3, if sold separately.


Local Authorities
Somerset Council


Viewings
Viewings are by appointment through the selling agents, Carter Jonas, on 01823 428590.


Directions
From Lympsham head towards Batch Country House. At the right turning for Batch Country House, continue on towards Weston-super-Mare and over the railway line. The entrance to Leaze Farm will be
found shortly after on the left-hand side.


What Three Words
/// types.cage.labels

The next steps...

Before making an offer on a property you will want to consider your financial situation, your income and outgoings.

Will you finance the purchase of your next property from the sale of an existing property which can put you in a chain, arrange a mortgage through your bank or buy the property outright.

To help you finance your next property purchase, we have a long established relationship with an independent mortgage broker who can discuss your situation with you.

Remember that having a 'mortgage decision in principle' can make you a more attractive buyer when you make an offer on a property. Contact our mortgage advisers for free, no obligation and impartial advice.

Some advantages of a broker are:

  • They do all the legwork for you, working on your behalf with the lender
  • They compare wholesale mortgage rates from a large number of banks and lenders all at once
  • Their wholesale interest rates can be lower than retail (bank branch) interest rates
  • They offer more loan options because they work with numerous banks and lenders
  • They can finance tricky deals because of their knowledge and various lending partners
  • They are typically easier to get in contact with, and are less bureaucratic.

However advantages of working with your bank are:

  • You may be able to build off an existing relationship (and gain discounts if you have a checking or savings account)
  • You may already know the banker who will handle your mortgage
  • Banks may be more accountable than a smaller shop
  • They may offer lower interest rates in some cases
  • Their ability to add mortgage to existing banking profile and make automatic payments from linked account.

When you see a property you are interested in on our website, call us 24/7 to arrange a viewing. Or if you prefer, get in touch via our website and we will call you back to find a time to view the property that suits you.

Once you’ve found a property you want to buy, it’s time to make an offer. A bit of negotiation is to be expected, however don't offer so little that you end up in a lengthy negotiation process, as you might lose the property altogether if someone else makes a higher bid.

If other offers have been made on a property we aren't legally able to tell you what they are, but we may indicate if they were close to the asking price.

If you have a property to sell, why not see how we can help you.

Or if you’re considering letting your property, we can take the stress out of managing your rental, and our award winning lettings team offer a service that can be tailored to your needs.

Combined with nearly 170 years of experience and one of the highest customer satisfaction scores in the industry, Carter Jonas is the perfect property partner.

Why not book a free, no obligation valuation of your property and find out how Carter Jonas can help you make your next move.

Key property details
Additional attributes
Outbuildings
Property type
House Farm Development Plot Holiday Complex
Tenure
Freehold
Total land
4.6 acres (1.9 hectares)
Carter Jonas reference
TAU240100

Suggested properties

Here are a few properties you might like, but within 2 extra miles of your current search

Guide price £90,000 14.3 acres (5.8 hectares)
Agricultural
Guide price £450,000 0.96 acres (0.388 hectares)
Agricultural
Guide price £80,000 12 acres (4.8 hectares)
Agricultural
Guide price £100,000 15.9 acres (6.4 hectares)
Agricultural
Guide price £400,000 1.2 acres (0.498 hectares)
Agricultural
Guide price £3,750,000 173.8 acres (70.3 hectares)
Agricultural
Guide price £1,850,000 47.2 acres (19.1 hectares)
Agricultural
Guide price £1,375,000 8.7 acres (3.5 hectares)
Agricultural
Guide price £80,000 6.6 acres (2.7 hectares)
Agricultural
Thinking of selling?

Find out what your property is worth