Hills Road, Cambridge CB2

Hills Road, Cambridge CB2

4 Bedroom | Freehold | 2 Baths

Guide price £1,750,000
Cambridge 0.9 miles
Shelford 2.2 miles
Cambridge North 3.1 miles

A truly stunning and idyllically positioned detached house on Hills Road in Cambridge measuring close to 2,500 sq.ft of accommodation.

A truly stunning and idyllically positioned detached house on Hills Road in Cambridge measuring close to 2,500 sq.ft of accommodation.

- Addenbrookes Hospital - approx. 0.5 miles
- Cambridge City Centre - approx. 1.5 miles
- Cambridge Railway Station - approx. 1.5 miles

• Vastly popular position
• Around 2,500 sq.ft of accommodation
• Abundantly characterful throughout
• Driveway parking & double garage
• Peaceful & established gardens
• Well-presented throughout
• EPC rating E

Description:

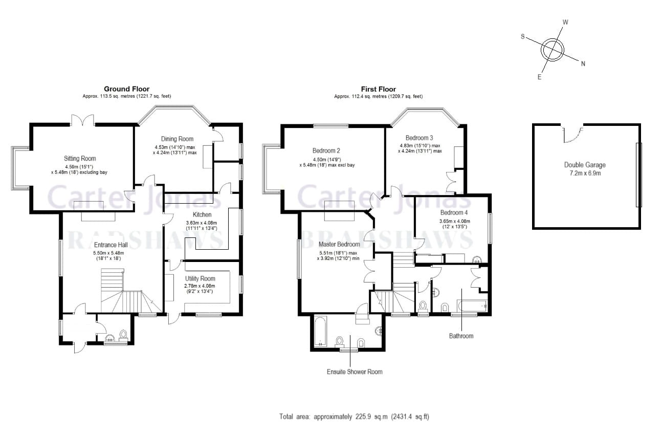
An incredibly charming and spacious four-bedroom detached home positioned in quite possibly the most desirable setting in town. The characterful accommodation measures around 2,500 sq.ft and consists of a large entrance hall, two spacious reception rooms, a kitchen, utility room, cloakroom, two further bathrooms and four large bedrooms. The large plot offers a gravelled driveway, a detached garage and established gardens.

Ground Floor:

Entering into a small entrance hall that leads to the downstairs cloakroom and furthermore into the large and characterful main entrance foyer, offering an open fireplace, parquet flooring and grand stairs leading to the first floor. The large sitting room is positioned to the rear of the property with oak flooring and French doors leading to the rear garden terrace. The formal dining room enjoys a large bay-window with views across the rear garden. The kitchen is stylishly presented with fitted units and drawers with worktops over and an inset sink, with integrated appliances including an oven, dishwasher and extractor fan. Leading from the kitchen is the utility room and larder.

First Floor:

The staggered landing boasts natural light and space, as well as access to the spacious and accessible loft room. The master bedroom situated at the front of the property offers a featured fireplace and ample fitted wardrobes, as well as an ensuite shower room, comprising a double sized shower cubicle, wash hand basin and WC. The remaining three bedrooms and abundantly spacious and all boast fitted wardrobes. The bathroom offers a shower cubicle, bath, wash hand basin and WC, whilst there is also a separate WC off of the landing.

Outside:

The property is approached through a timber gate opening to the substantial gravelled driveway offering ample parking and access to the detached double garage. The remaining front aspect offers a selection of established trees and shrubs. The south-westerly facing rear garden is predominately lawned with a paved terrace and mature shrubs, plants, trees and shrubs.

Location:

The location is highly accessible for access to the city centre, along with many of the renowned schools (within walking distance of The Perse), Sixth Form Colleges and the hospital. For those needing to commute by road, some of the major networks are a short drive away, leading to London, the north and Stansted Airport. There is a Waitrose supermarket within easy reach along with local amenities available on Cherry Hinton Road and the leisure complex, a short walk away. There is also a direct cycle and bus route along Hills Road into the city centre and the railway station, which offers a fast and regular train service into London.

Additional Information:

Tenure: Freehold.

Services: Gas fired central heating. Mains water, gas, drainage and electricity

Local Authority: Cambridge City District Council

Council Tax: Band G

Viewings: Strictly by appointment with the Selling Agents, Carter Jonas 01223 403330

The next steps...

Before making an offer on a property you will want to consider your financial situation, your income and outgoings.

Will you finance the purchase of your next property from the sale of an existing property which can put you in a chain, arrange a mortgage through your bank or buy the property outright.

To help you finance your next property purchase, we have a long established relationship with an independent mortgage broker who can discuss your situation with you.

Remember that having a 'mortgage decision in principle' can make you a more attractive buyer when you make an offer on a property. Contact our mortgage advisers for free, no obligation and impartial advice.

Some advantages of a broker are:

  • They do all the legwork for you, working on your behalf with the lender
  • They compare wholesale mortgage rates from a large number of banks and lenders all at once
  • Their wholesale interest rates can be lower than retail (bank branch) interest rates
  • They offer more loan options because they work with numerous banks and lenders
  • They can finance tricky deals because of their knowledge and various lending partners
  • They are typically easier to get in contact with, and are less bureaucratic.

However advantages of working with your bank are:

  • You may be able to build off an existing relationship (and gain discounts if you have a checking or savings account)
  • You may already know the banker who will handle your mortgage
  • Banks may be more accountable than a smaller shop
  • They may offer lower interest rates in some cases
  • Their ability to add mortgage to existing banking profile and make automatic payments from linked account.

When you see a property you are interested in on our website, call us 24/7 to arrange a viewing. Or if you prefer, get in touch via our website and we will call you back to find a time to view the property that suits you.

Once you’ve found a property you want to buy, it’s time to make an offer. A bit of negotiation is to be expected, however don't offer so little that you end up in a lengthy negotiation process, as you might lose the property altogether if someone else makes a higher bid.

If other offers have been made on a property we aren't legally able to tell you what they are, but we may indicate if they were close to the asking price.

If you have a property to sell, why not see how we can help you.

Or if you’re considering letting your property, we can take the stress out of managing your rental, and our award winning lettings team offer a service that can be tailored to your needs.

Combined with nearly 170 years of experience and one of the highest customer satisfaction scores in the industry, Carter Jonas is the perfect property partner.

Why not book a free, no obligation valuation of your property and find out how Carter Jonas can help you make your next move.

Key property details
Property attributes
Detached
Parking available
Off Street Parking Double Garage
Additional attributes
Garden
Locality
Town/City
Tenure
Freehold
Energy efficiency rating
E
Total sq ft
2,431 (225.8 Sq M) approx.
Carter Jonas reference
CAH240240

Suggested properties

Here are a few properties you might like, but within 2 extra miles of your current search

Asking price £525,000
3 bedroom house
Guide price £895,000
5 bedroom house
Asking price £799,950
2 bedroom flat
Asking price £769,950
3 bedroom flat
Asking price £499,950
1 bedroom flat
Asking price £749,950
2 bedroom flat
Asking price £849,950
3 bedroom flat
Guide price £499,950
1 bedroom flat
Asking price £1,294,950
3 bedroom flat
Guide price £649,950
2 bedroom flat
Asking price £1,024,950
3 bedroom flat
Asking price £1,299,950
3 bedroom flat
Thinking of selling?

Find out what your property is worth