Long Road, Cambridge CB2

Long Road, Cambridge CB2

5 Bedroom | Freehold

Asking price £1,400,000
Cambridge 1.2 miles
Shelford 2.3 miles
Cambridge North 3.4 miles

A rare opportunity to a acquire a plot with full planning permission for a generous self/custom build detached dwelling in a highly desirable location. Full planning has been granted under the following reference number 25/04036/S73.

Development Opportunity – 0.21 Acre Plot with Full Planning Permission


A rare opportunity to acquire a generous 0.21acre site on one of Cambridge’s most sought after residential roads, benefiting from approved planning permission for the construction of a substantial, detached 5 bedroom family home. This represents an exceptional opportunity for a self-builder, developer, or private buyer wishing to create a premium bespoke residence.

Planning Permission Summary

Planning Reference: 25/04036/S73
Decision Date: 3 December 2025
Local Authority: Cambridge City Council

The permission grants a Section 73 variation to amend the previously approved scheme (ref 24/04628/FUL) for a replacement self/custom-build detached dwelling with associated bike/refuse store. The variation allows:

A two storey front extension
Single storey rear pergola
Gablet hipped roof alteration
Revised fenestration


Approved Dwelling – Key Design Features

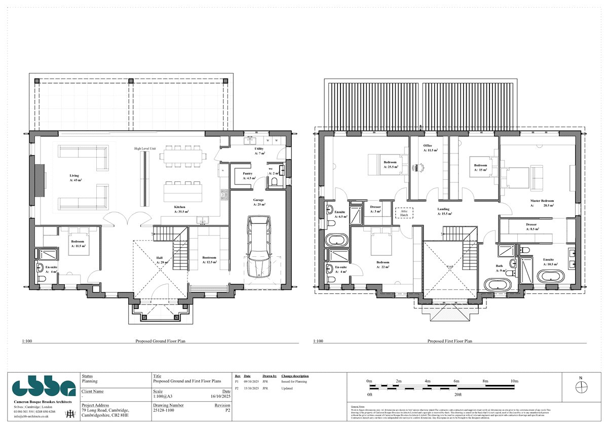
The approved home is a substantial 2storey detached property designed by Cameron Bosque Brookes Architects.
Key internal spaces from the architectural plans include:

Ground Floor

Large open plan kitchen (35.5 m²)
Living area (45 m²)
Utility (7 m²)
Boot room (12.5 m²)
Hall (29 m²)
Pantry (4.5 m²)
Bedroom (11.5 m²)
Garage (25 m²)


First Floor

Main bedroom (28.5 m²) with ensuite (10.5 m²) and dresser (8.5 m²)
Additional three bedrooms: 25.5 m², 22 m², 15 m²
Office (11.5 m²)
Two further ensuites and family bathroom
Spacious landing (15.5 m²)

Architectural & Exterior Design

The elevations illustrate a contemporary and high quality materials palette including:

Proposed brick and stone
Grey aluminium windows and rainwater goods
Dark render
Timber pergola
Sedum/green roof features


Conditions & Requirements

The planning permission is subject to standard and site-specific conditions of which are listed on the Decision Notice. Some of these conditions have already been addressed. Please contact the agents for more information.


Location

Long Road is located in the south of the city, and is well served with amenities including Waitrose supermarket just over 1 mile away, and an abundance of eateries, petrol station and a parade of shops.

Addenbrookes Hospital and Biomedical Campus is 1 mile away and is easily commutable by bike or walking along a designated pathway.

Independent schools for all age groups are available in Cambridge city including St Marys, The Perse, St Faith’s and The Leys along or just off Trumpington Road/Street which can be reached via a designated cycle route into Cambridge. There are two primary schools in Trumpington which feed into the recently opened Trumpington Community College.

There are many open public spaces in the vicinity including those at Byron’s Pool and Grantchester Meadows, Coe Fen and Lammas Land, along with the new country park at Great Kneighton which is situated on the outskirts and to the east of Trumpington.

Long Road lies close to the M11 at Junction 11 which heads south towards Stansted Airport, London and the M25 and north towards A14, A1, M1 and M6. There are regular train services from Cambridge into London from around 50 minutes. There is also a cycle route along the guided bus way into Cambridge.

All distances and times are approximate.

SERVICES
It is believed that all services are connected to the property, however interested parties are advised to do their own due diligence.

VAT
It is understood that the vendor has not elected to tax the property. All bids should consider VAT accordingly.

Viewings
Strictly by appointment only with the sales agent.

Disclaimer – The information given is without responsibility on the part of the agent (sellers) and you should not rely on the information being factually accurate about the property. Neither Carter Jonas LLP nor anyone in its employment or acting on its behalf have the authority to make any representation or warranty in relation to this property. The areas, measurements and distances are approximate only.

The next steps...

Before making an offer on a property you will want to consider your financial situation, your income and outgoings.

Will you finance the purchase of your next property from the sale of an existing property which can put you in a chain, arrange a mortgage through your bank or buy the property outright.

To help you finance your next property purchase, we have a long established relationship with an independent mortgage broker who can discuss your situation with you.

Remember that having a 'mortgage decision in principle' can make you a more attractive buyer when you make an offer on a property. Contact our mortgage advisers for free, no obligation and impartial advice.

Some advantages of a broker are:

  • They do all the legwork for you, working on your behalf with the lender
  • They compare wholesale mortgage rates from a large number of banks and lenders all at once
  • Their wholesale interest rates can be lower than retail (bank branch) interest rates
  • They offer more loan options because they work with numerous banks and lenders
  • They can finance tricky deals because of their knowledge and various lending partners
  • They are typically easier to get in contact with, and are less bureaucratic.

However advantages of working with your bank are:

  • You may be able to build off an existing relationship (and gain discounts if you have a checking or savings account)
  • You may already know the banker who will handle your mortgage
  • Banks may be more accountable than a smaller shop
  • They may offer lower interest rates in some cases
  • Their ability to add mortgage to existing banking profile and make automatic payments from linked account.

When you see a property you are interested in on our website, call us 24/7 to arrange a viewing. Or if you prefer, get in touch via our website and we will call you back to find a time to view the property that suits you.

Once you’ve found a property you want to buy, it’s time to make an offer. A bit of negotiation is to be expected, however don't offer so little that you end up in a lengthy negotiation process, as you might lose the property altogether if someone else makes a higher bid.

If other offers have been made on a property we aren't legally able to tell you what they are, but we may indicate if they were close to the asking price.

If you have a property to sell, why not see how we can help you.

Or if you’re considering letting your property, we can take the stress out of managing your rental, and our award winning lettings team offer a service that can be tailored to your needs.

Combined with nearly 170 years of experience and one of the highest customer satisfaction scores in the industry, Carter Jonas is the perfect property partner.

Why not book a free, no obligation valuation of your property and find out how Carter Jonas can help you make your next move.

Key property details
Property attributes
Detached
Parking available
Off Street Parking Garage
Locality
Town/City
Tenure
Freehold
Total sq ft
9,147.6 (849.8 Sq M) approx.
Carter Jonas reference
CNH260023

Suggested properties

Here are a few properties you might like, but within 2 extra miles of your current search

Guide price £525,000
3 bedroom house
Guide price £895,000
5 bedroom house
Guide price £340,000
3 bedroom house
Guide price £475,000
2 bedroom flat
Asking price £799,950
2 bedroom flat
Asking price £769,950
3 bedroom flat
Asking price £499,950
1 bedroom flat
Asking price £749,950
2 bedroom flat
Asking price £849,950
3 bedroom flat
Guide price £499,950
1 bedroom flat
Guide price £649,950
2 bedroom flat
Asking price £1,294,950
3 bedroom flat
Thinking of selling?

Find out what your property is worth