Knowles Brow, Hurst Green BB7

Knowles Brow, Hurst Green BB7

Freehold

Offers over £675,000
Whalley 2.4 miles
Langho (LHO) 2.6 miles
Clitheroe 3.5 miles

DEVELOPMENT OPPORTUNITY - A substantial detached barn with planning for conversion into 3 properties and with potential to convert into a single property, enjoying superb views over the Ribble Valley and occupying a private position close to Stonyhurst College.

LOCATION

New Barn occupies a discreet and little known position, close to Stonyhurst College and just to the east of the popular and sought after village of Hurst Green. It occupies a lovely semi rural setting surrounded by open countryside and woodland. It is however conveniently located with a wide range everyday amenities available in the neighbouring towns of Clitheroe, Whalley and Longridge.

GENERAL COMMENTS

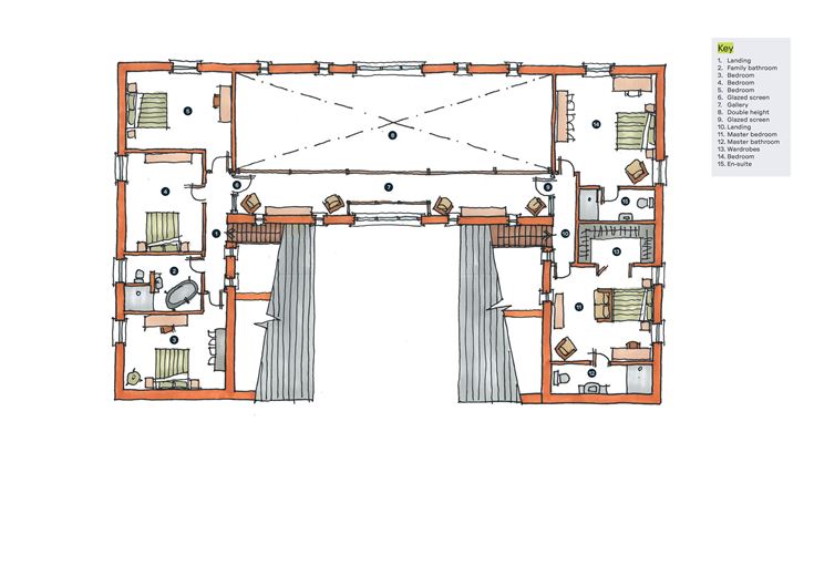
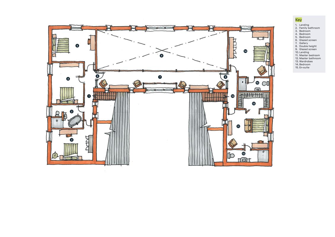
New Barn is a substantial stone built barn with planning permission granted to convert into 3 properties – 1 x 4 bedroom, 1 x 3 bedroom and 1 x 2 bedroom. In total the barn extends to about 7000 sq ft (650 sqm).

The sale represents a fantastic and rare development opportunity in the area. Very few opportunities of the nature are offered to the open market.

Whilst currently having planning for 3 units, there may be the potential to convert the barn into a single residence, creating a most spacious, impressive and individual family house.

The next steps...

Before making an offer on a property you will want to consider your financial situation, your income and outgoings.

Will you finance the purchase of your next property from the sale of an existing property which can put you in a chain, arrange a mortgage through your bank or buy the property outright.

To help you finance your next property purchase, we have a long established relationship with an independent mortgage broker who can discuss your situation with you.

Remember that having a 'mortgage decision in principle' can make you a more attractive buyer when you make an offer on a property. Contact our mortgage advisers for free, no obligation and impartial advice.

Some advantages of a broker are:

  • They do all the legwork for you, working on your behalf with the lender
  • They compare wholesale mortgage rates from a large number of banks and lenders all at once
  • Their wholesale interest rates can be lower than retail (bank branch) interest rates
  • They offer more loan options because they work with numerous banks and lenders
  • They can finance tricky deals because of their knowledge and various lending partners
  • They are typically easier to get in contact with, and are less bureaucratic.

However advantages of working with your bank are:

  • You may be able to build off an existing relationship (and gain discounts if you have a checking or savings account)
  • You may already know the banker who will handle your mortgage
  • Banks may be more accountable than a smaller shop
  • They may offer lower interest rates in some cases
  • Their ability to add mortgage to existing banking profile and make automatic payments from linked account.

When you see a property you are interested in on our website, call us 24/7 to arrange a viewing. Or if you prefer, get in touch via our website and we will call you back to find a time to view the property that suits you.

Once you’ve found a property you want to buy, it’s time to make an offer. A bit of negotiation is to be expected, however don't offer so little that you end up in a lengthy negotiation process, as you might lose the property altogether if someone else makes a higher bid.

If other offers have been made on a property we aren't legally able to tell you what they are, but we may indicate if they were close to the asking price.

If you have a property to sell, why not see how we can help you.

Or if you’re considering letting your property, we can take the stress out of managing your rental, and our award winning lettings team offer a service that can be tailored to your needs.

Combined with nearly 170 years of experience and one of the highest customer satisfaction scores in the industry, Carter Jonas is the perfect property partner.

Why not book a free, no obligation valuation of your property and find out how Carter Jonas can help you make your next move.

Key property details
Parking available
Off Street Parking
Tenure
Freehold
Carter Jonas reference
HAR250162
Thinking of selling?

Find out what your property is worth