Ellerton Road, London SW18

Ellerton Road, London SW18

4 Bedroom | Freehold | 3 Baths

Guide price £1,695,000
Isis Street (Stop P) 0.6 miles
Earlsfield 0.6 miles

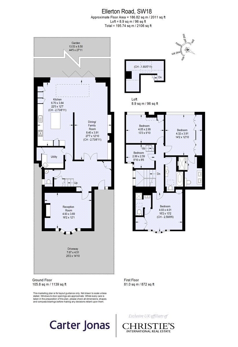
With approximately 2,011 square feet of well-balanced and beautifully presented living and entertaining space, this four-bedroom Arts & Craft style house, with Southwest facing garden, close to Wandsworth Common ticks all the boxes.

With approximately 2,011 square feet of well-balanced and beautifully presented living and entertaining space, this four-bedroom Arts & Crafts style house, with Southwest facing garden, close to Wandsworth Common, ticks all the boxes.

The house has been extended and updated to embrace modern living and entertaining. A large, bright, and welcoming central hallway leads to all the principle rooms. The fabulous kitchen/diner/family room packs a punch with an immaculately finished kitchen and island, large dining and living space, with bi-fold doors to the southwest facing terrace and garden. A utility room leading from the kitchen neatly houses the washing machine and drier. At the front of the property, the well-proportioned sitting room has a large bay window, and a contemporary feature fireplace, and under the stairs, a guest cloakroom W.C. completes the rear of the ground floor. Light Luxury Vinyl Tile flooring and underfloor heating runs throughout the majority of the downstairs space.

The first floor comprises four double bedrooms, served by two ensuite shower rooms and a family bathroom. One of the bedrooms, currently arranged as a study, benefits from a mezzanine level, accessed by a ladder which could be used as a library area or play den. There is additional loft storage.

Ellerton Road runs off Magdalen Road between Trinity Road and Burntwood Lane, making it extremely convenient for Wandsworth Common, and the shops, boutiques, pubs and bars of Bellevue Road and Garratt Lane. Transport links are well catered for with Wandsworth Common (approximately 0.7 miles) and Earlsfield (approximately 0.9 miles) Overground stations both nearby. The Underground Northern Line at Tooting Bec is also 1 mile away. There are plenty of local sporting facilities nearby such as the Magdalen Tennis Club, the Spencer Club and Battersea Ironsides Rugby Club. The area is renowned for its many good schools, both state and independent.

The next steps...

Before making an offer on a property you will want to consider your financial situation, your income and outgoings.

Will you finance the purchase of your next property from the sale of an existing property which can put you in a chain, arrange a mortgage through your bank or buy the property outright.

To help you finance your next property purchase, we have a long established relationship with an independent mortgage broker who can discuss your situation with you.

Remember that having a 'mortgage decision in principle' can make you a more attractive buyer when you make an offer on a property. Contact our mortgage advisers for free, no obligation and impartial advice.

Some advantages of a broker are:

  • They do all the legwork for you, working on your behalf with the lender
  • They compare wholesale mortgage rates from a large number of banks and lenders all at once
  • Their wholesale interest rates can be lower than retail (bank branch) interest rates
  • They offer more loan options because they work with numerous banks and lenders
  • They can finance tricky deals because of their knowledge and various lending partners
  • They are typically easier to get in contact with, and are less bureaucratic.

However advantages of working with your bank are:

  • You may be able to build off an existing relationship (and gain discounts if you have a checking or savings account)
  • You may already know the banker who will handle your mortgage
  • Banks may be more accountable than a smaller shop
  • They may offer lower interest rates in some cases
  • Their ability to add mortgage to existing banking profile and make automatic payments from linked account.

When you see a property you are interested in on our website, call us 24/7 to arrange a viewing. Or if you prefer, get in touch via our website and we will call you back to find a time to view the property that suits you.

Once you’ve found a property you want to buy, it’s time to make an offer. A bit of negotiation is to be expected, however don't offer so little that you end up in a lengthy negotiation process, as you might lose the property altogether if someone else makes a higher bid.

If other offers have been made on a property we aren't legally able to tell you what they are, but we may indicate if they were close to the asking price.

If you have a property to sell, why not see how we can help you.

Or if you’re considering letting your property, we can take the stress out of managing your rental, and our award winning lettings team offer a service that can be tailored to your needs.

Combined with nearly 170 years of experience and one of the highest customer satisfaction scores in the industry, Carter Jonas is the perfect property partner.

Why not book a free, no obligation valuation of your property and find out how Carter Jonas can help you make your next move.

Key property details
Property attributes
Terraced
Parking available
Off Street Parking
Additional attributes
Garden Patio
Tenure
Freehold
Energy efficiency rating
D
Total sq ft
2,011 (186.8 Sq M) approx.
Carter Jonas reference
WNS100246

Suggested properties

Here are a few properties you might like, but within 2 extra miles of your current search

Offers in excess of £15,000,000
4 bedroom house
Asking price £1,000,000
1 bedroom
Asking price £1,580,000
1 bedroom flat
Asking price £1,700,000
2 bedroom flat
Asking price £1,600,000
2 bedroom flat
Asking price £5,425,000
2 bedroom flat
Asking price £7,295,000
3 bedroom flat
Asking price £3,000,000
3 bedroom house
Offers in excess of £2,000,000
1 bedroom house
Guide price £1,100,000
2 bedroom flat
Asking price £4,500,000
3 bedroom maisonette
Asking price £2,250,000
2 bedroom flat
Thinking of selling?

Find out what your property is worth