Ducks Meadow, Marlborough SN8

Ducks Meadow, Marlborough SN8

4 Bedroom | Freehold | 1 Bath

Guide price £675,000
Police Station 0.2 miles
Del 0.2 miles
Lloyds Bank 0.3 miles

A fabulous three/four bedroom detached house, centrally located within walking distance of the town centre with parking, two garages and enjoying glorious views.

Description

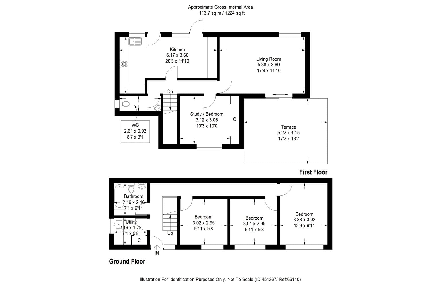
12 Ducks Meadow occupies a superb, elevated position, just a short walk from the High Street and boasting fabulous views over the town and beyond. If there is the need for more space, the property offers scope for further improvement as planning permission (PL/2023/10550) has been approved for the formation of new 2-storey side extensions and pitched roof dormers to the front elevation.

The downstairs accommodation comprises of three double bedrooms, a newly installed family bathroom and very handy utility room, allowing the first-floor reception rooms to enjoy the fabulous views across Marlborough.

Heading upstairs, the expansive kitchen / dining room has a lovely, contemporary feel. The kitchen is fitted with a good range built-in units and integrated appliances including electric hob, oven, integral dishwasher and fridge-freezer. Double doors provide access onto the rear terrace.

The sitting room is a particularly good size, a spacious yet cosy room which enjoys a dual aspect. Sliding doors open onto the roof terrace, from where you can truly appreciate the far reaching views over the town. Completing the top floor accommodation are bedroom 4 (or study) and a cloakroom at the end of the hallway.

There are solar panels at the property helping to provide a discount on electricity costs and if access to schools is what you're after, then both St Mary's Primary School and St John's Academy are a short walk away.

Outside

Steps up to the property from the lane bisect the lawned front garden and garages and there is off road-parking for two vehicles. The private rear garden is of a good size and is laid mainly to lawn. It enjoys great privacy and also boasts a small, secluded patio area to enjoy the morning sun. There is an excellent terrace for al fresco entertaining accessed off living room from where you can enjoy amazing views of Marlborough and the hills beyond.

Situation

Ducks Meadow is situated within easy walking distance of the High Street. The town offers a mix of major retailers, independent boutiques, coffee and tea shops. There is a wide selection of national retailers including Waitrose and Tesco supermarkets, popular restaurants include: Rick Stein’s, Franklyn’s Bistro, Dan’s, Pino’s and Ask. Hillier’s Yard and Hughenden Yard offer further boutique shopping to be discovered off the historic high street and the independent Parade Cinema show a wide range of films and live theatre. The leisure centre is located close to the centre of town and Marlborough Golf Club offers an excellent round of golf in a stunning setting.

Marlborough has excellent schooling with St Johns Academy close by and is also home to the renowned private school Marlborough College. St. Mary's CE Primary School is located nearby and is Ofsted rated "Good". The surrounding area is dominated by the ancient Savernake Forest and stunning Marlborough Downs which run between the Pewsey Vale and Kennet Valley. Rail links to London Paddington are from Pewsey, Great Bedwyn, Swindon and Hungerford.

Services and Material Information

- Freehold
- Mains water, mains drainage, gas fired central heating.
- Council tax band: F
- Energy efficiency rating: C
- Broadband and mobile coverage. Please refer to Ofcom website

The next steps...

Before making an offer on a property you will want to consider your financial situation, your income and outgoings.

Will you finance the purchase of your next property from the sale of an existing property which can put you in a chain, arrange a mortgage through your bank or buy the property outright.

To help you finance your next property purchase, we have a long established relationship with an independent mortgage broker who can discuss your situation with you.

Remember that having a 'mortgage decision in principle' can make you a more attractive buyer when you make an offer on a property. Contact our mortgage advisers for free, no obligation and impartial advice.

Some advantages of a broker are:

  • They do all the legwork for you, working on your behalf with the lender
  • They compare wholesale mortgage rates from a large number of banks and lenders all at once
  • Their wholesale interest rates can be lower than retail (bank branch) interest rates
  • They offer more loan options because they work with numerous banks and lenders
  • They can finance tricky deals because of their knowledge and various lending partners
  • They are typically easier to get in contact with, and are less bureaucratic.

However advantages of working with your bank are:

  • You may be able to build off an existing relationship (and gain discounts if you have a checking or savings account)
  • You may already know the banker who will handle your mortgage
  • Banks may be more accountable than a smaller shop
  • They may offer lower interest rates in some cases
  • Their ability to add mortgage to existing banking profile and make automatic payments from linked account.

When you see a property you are interested in on our website, call us 24/7 to arrange a viewing. Or if you prefer, get in touch via our website and we will call you back to find a time to view the property that suits you.

Once you’ve found a property you want to buy, it’s time to make an offer. A bit of negotiation is to be expected, however don't offer so little that you end up in a lengthy negotiation process, as you might lose the property altogether if someone else makes a higher bid.

If other offers have been made on a property we aren't legally able to tell you what they are, but we may indicate if they were close to the asking price.

If you have a property to sell, why not see how we can help you.

Or if you’re considering letting your property, we can take the stress out of managing your rental, and our award winning lettings team offer a service that can be tailored to your needs.

Combined with nearly 170 years of experience and one of the highest customer satisfaction scores in the industry, Carter Jonas is the perfect property partner.

Why not book a free, no obligation valuation of your property and find out how Carter Jonas can help you make your next move.

Key property details
Property attributes
Detached
Era
Modern
Parking available
Off Street Parking Double Garage
Additional attributes
Garden
Locality
Town/City
Tenure
Freehold
Energy efficiency rating
C
Environment impact rating
C
Total sq ft
1,224 (113.7 Sq M) approx.
Carter Jonas reference
MAR250008

Suggested properties

Here are a few properties you might like, but within 2 extra miles of your current search

Guide price £685,000
4 bedroom house
Offers over £700,000
4 bedroom house
Guide price £595,000
4 bedroom house
Guide price £775,000
4 bedroom house
Guide price £750,000
4 bedroom house
Guide price £575,000
4 bedroom house
Guide price £750,000
4 bedroom house
Thinking of selling?

Find out what your property is worth