Niton Street, London SW6

Niton Street, London SW6

3 Bedroom | 2 Baths

£3,500 per month £808 per week
Greyhound Road Barons Court (Stop HS) 0.2 miles
Hammersmith Broadway (Stop N) 0.6 miles

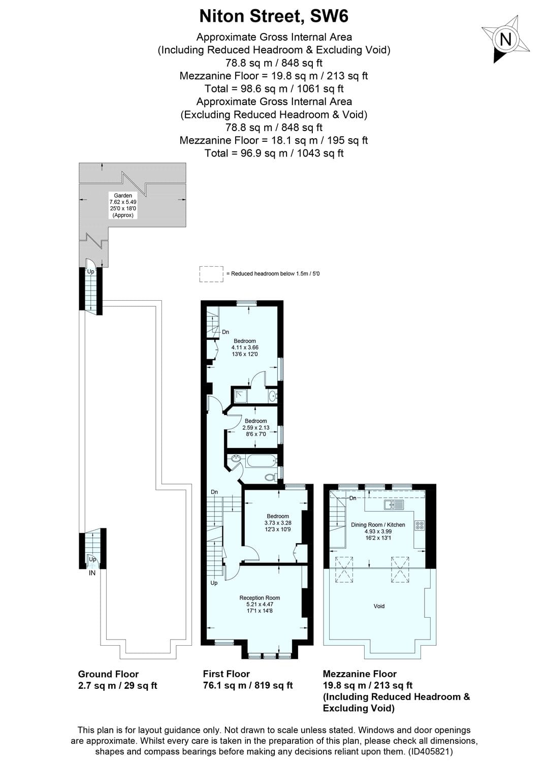
A stylish three bedroom maisonette with mezzanine style kitchen and access to south facing rear garden. Not available to 3 sharers. EPC rating D.

This superb property is located on a popular tree lined road within Bishops Park and retains many period features throughout whilst enjoying excellent natural light.

The first floor comprises of principal bedroom with en suite shower room, two further bedrooms, guest bathroom and large reception room. The top floor is an open plan mezzanine style kitchen, with fitted units and an area for dining table. The property further benefits from south facing garden.

Niton Street situated in the sought after 'Alphabet' streets of the Bishops Park Estate. Running towards the river off Fulham Palace Road, it is conveniently located to take advantage of Fulham's recently refurbished, tranquil Bishops Park and the local area's shops, restaurants and sports facilities (tennis courts and gym). The Thames path, Nuffield Health Club, Little Waitrose, The River Café and the Crabtree pub are within close proximity, along with the amenities on the Fulham Palace Road. Transport links of Hammersmith Broadway (Circle, Hammersmith & City, Piccadilly and District lines) and Putney Bridge (District line) in close walking proximity.

Holding deposit: 1 week's rent
Security deposit: 5 weeks' rent
Council tax: Band E
Pets considered
Parking: on street via a permit

The next steps...

Before making an offer on a property you will want to consider your financial situation, your income and outgoings.

Will you finance the purchase of your next property from the sale of an existing property which can put you in a chain, arrange a mortgage through your bank or buy the property outright.

To help you finance your next property purchase, we have a long established relationship with an independent mortgage broker who can discuss your situation with you.

Remember that having a 'mortgage decision in principle' can make you a more attractive buyer when you make an offer on a property. Contact our mortgage advisers for free, no obligation and impartial advice.

Some advantages of a broker are:

  • They do all the legwork for you, working on your behalf with the lender
  • They compare wholesale mortgage rates from a large number of banks and lenders all at once
  • Their wholesale interest rates can be lower than retail (bank branch) interest rates
  • They offer more loan options because they work with numerous banks and lenders
  • They can finance tricky deals because of their knowledge and various lending partners
  • They are typically easier to get in contact with, and are less bureaucratic.

However advantages of working with your bank are:

  • You may be able to build off an existing relationship (and gain discounts if you have a checking or savings account)
  • You may already know the banker who will handle your mortgage
  • Banks may be more accountable than a smaller shop
  • They may offer lower interest rates in some cases
  • Their ability to add mortgage to existing banking profile and make automatic payments from linked account.

When you see a property you are interested in on our website, call us 24/7 to arrange a viewing. Or if you prefer, get in touch via our website and we will call you back to find a time to view the property that suits you.

Once you’ve found a property you want to buy, it’s time to make an offer. A bit of negotiation is to be expected, however don't offer so little that you end up in a lengthy negotiation process, as you might lose the property altogether if someone else makes a higher bid.

If other offers have been made on a property we aren't legally able to tell you what they are, but we may indicate if they were close to the asking price.

If you have a property to sell, why not see how we can help you.

Or if you’re considering letting your property, we can take the stress out of managing your rental, and our award winning lettings team offer a service that can be tailored to your needs.

Combined with nearly 170 years of experience and one of the highest customer satisfaction scores in the industry, Carter Jonas is the perfect property partner.

Why not book a free, no obligation valuation of your property and find out how Carter Jonas can help you make your next move.

Key property details
Property attributes
Terraced First Floor
Era
Period
Parking available
Residents Parking
Additional attributes
Garden
Energy efficiency rating
D
Environment impact rating
E
Letting fees
Download Letting Fees
Total sq ft
1,043 (96.9 Sq M) approx.
Carter Jonas reference
PRL180007

Suggested properties

Here are a few properties you might like, but within 2 extra miles of your current search

£3,200 pcm £738 p/w
3 bedroom maisonette
£3,750 p/w £16,250 pcm
3 bedroom flat
£3,600 p/w £15,600 pcm
3 bedroom flat
£3,500 p/w £15,167 pcm
3 bedroom flat
£3,250 pcm £750 p/w
3 bedroom flat
Thinking of selling?

Find out what your property is worth