Hall Farm Lane, Westley IP33

Hall Farm Lane, Westley IP33

Freehold

Guide price £750,000
Bury St Edmunds 1.7 miles
Springfield Road 1.4 miles
Bury St Edmunds bus station 1.6 miles

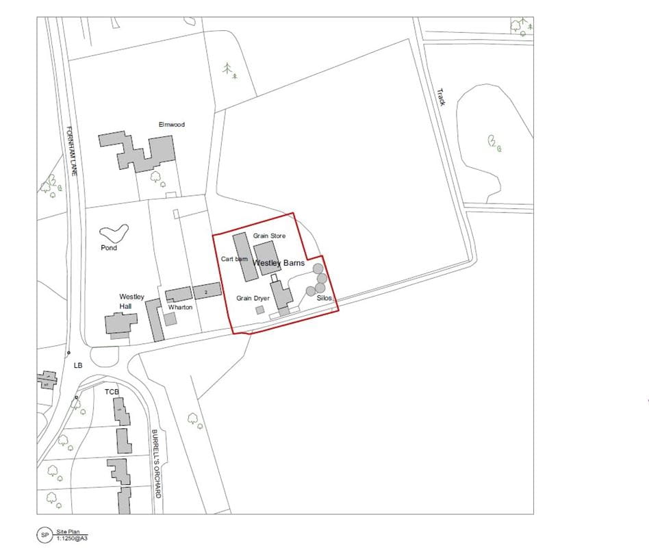
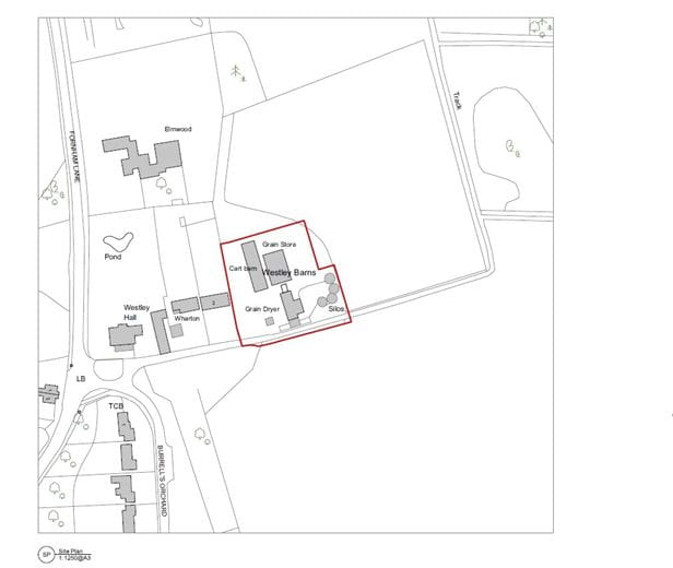
A unique opportunity to acquire a development site in the sought after village of Westley. Planning permission has been obtained to convert the existing barns into three dwellings, consisting of a 5 bedroom detached barn and two 3 bedroom semi-detached barns.

Carter Jonas are delighted to present a fantastic opportunity to acquire a residential development site located in the picturesque village of Westley, down a quiet lane.

Planning permission has been obtained for the conversion of the existing barns into 3 separate dwellings consisting a 5 bedroom detached barn at approx. 2650sqft, and two 3 bedroom semi-detached barns comprising approx. 1076sqft of accomodation. All properties will benefit from garden space and parking.

LOCATION
Westley is a sought after village located just 3 miles west of the historic town of Bury St Edmunds, which provides an extensive range of shops, public houses, cafes, restaurants, schools and a train station. Westley has easy access to A14, which links Newmarket, Cambridge and London via the M11.

METHOD OF SALE
The Property is for sale by private treaty.

TENNURE AND POSSESSION
The Property is for sale freehold with vacant possession upon completion.

PLANNING
Prior approval application under Part 3 of the Town and Country Planning (General Permitted Development) to change the use of agricultural buildings to create three dwellings, under application reference DC/23/0110/FUL

SERVICES
Mains water and electricity are connected to the site. However interested parties should make their own enquiries.

WAYLEAVES EASEMENTS & RIGHTS OF WAY
The property is sold subject to all wayleaves, easements, covenants and rights of way whether or not disclosed. Existing access to the site is from Hall Farm Lane.

VAT
The vendor has not made an election to waive the VAT exemption on the property therefore VAT will not be payable on the purchase price.

LOCAL AUTHOURITY
West Suffolk Council
West Suffolk House
Western Way
Bury St Edmunds
IP33 3YU


HEALTH AND SAFETY
As always, potential hazards exist of old farm buildings and it is requested that all viewings are escorted and undertaken with care and regard to safety particularly around the existing buildings.

VIEWINGS
Viewings are strictly by appointment with the Agent. For further information please contact Jason Capel on 01223 403330 or jason.capel@carterjonas.co.uk

The next steps...

Before making an offer on a property you will want to consider your financial situation, your income and outgoings.

Will you finance the purchase of your next property from the sale of an existing property which can put you in a chain, arrange a mortgage through your bank or buy the property outright.

To help you finance your next property purchase, we have a long established relationship with an independent mortgage broker who can discuss your situation with you.

Remember that having a 'mortgage decision in principle' can make you a more attractive buyer when you make an offer on a property. Contact our mortgage advisers for free, no obligation and impartial advice.

Some advantages of a broker are:

  • They do all the legwork for you, working on your behalf with the lender
  • They compare wholesale mortgage rates from a large number of banks and lenders all at once
  • Their wholesale interest rates can be lower than retail (bank branch) interest rates
  • They offer more loan options because they work with numerous banks and lenders
  • They can finance tricky deals because of their knowledge and various lending partners
  • They are typically easier to get in contact with, and are less bureaucratic.

However advantages of working with your bank are:

  • You may be able to build off an existing relationship (and gain discounts if you have a checking or savings account)
  • You may already know the banker who will handle your mortgage
  • Banks may be more accountable than a smaller shop
  • They may offer lower interest rates in some cases
  • Their ability to add mortgage to existing banking profile and make automatic payments from linked account.

When you see a property you are interested in on our website, call us 24/7 to arrange a viewing. Or if you prefer, get in touch via our website and we will call you back to find a time to view the property that suits you.

Once you’ve found a property you want to buy, it’s time to make an offer. A bit of negotiation is to be expected, however don't offer so little that you end up in a lengthy negotiation process, as you might lose the property altogether if someone else makes a higher bid.

If other offers have been made on a property we aren't legally able to tell you what they are, but we may indicate if they were close to the asking price.

If you have a property to sell, why not see how we can help you.

Or if you’re considering letting your property, we can take the stress out of managing your rental, and our award winning lettings team offer a service that can be tailored to your needs.

Combined with nearly 170 years of experience and one of the highest customer satisfaction scores in the industry, Carter Jonas is the perfect property partner.

Why not book a free, no obligation valuation of your property and find out how Carter Jonas can help you make your next move.

Key property details
Locality
Village
Property type
Land Development Plot
Tenure
Freehold
Carter Jonas reference
CNH240088

Suggested properties

Here are a few properties you might like, but within 2 extra miles of your current search

Price on Application
Agricultural
Asking price £725,000
Agricultural
Price on Application 0.3 acres (0.121 hectares)
Agricultural
Thinking of selling?

Find out what your property is worth