Holyhead Road, Bicton SY3

Holyhead Road, Bicton SY3

Guide price £400,000
Shrewsbury 3.3 miles
Oxon Business Park 1.4 miles
Racecourse Lane Jct 1.8 miles

Fantastic opportunity to convert two barns in an idyllic rural setting within easy reach of Shrewsbury

Development opportunity for the conversion of two traditional barns to provide generous three and four bed dwellings.

Property
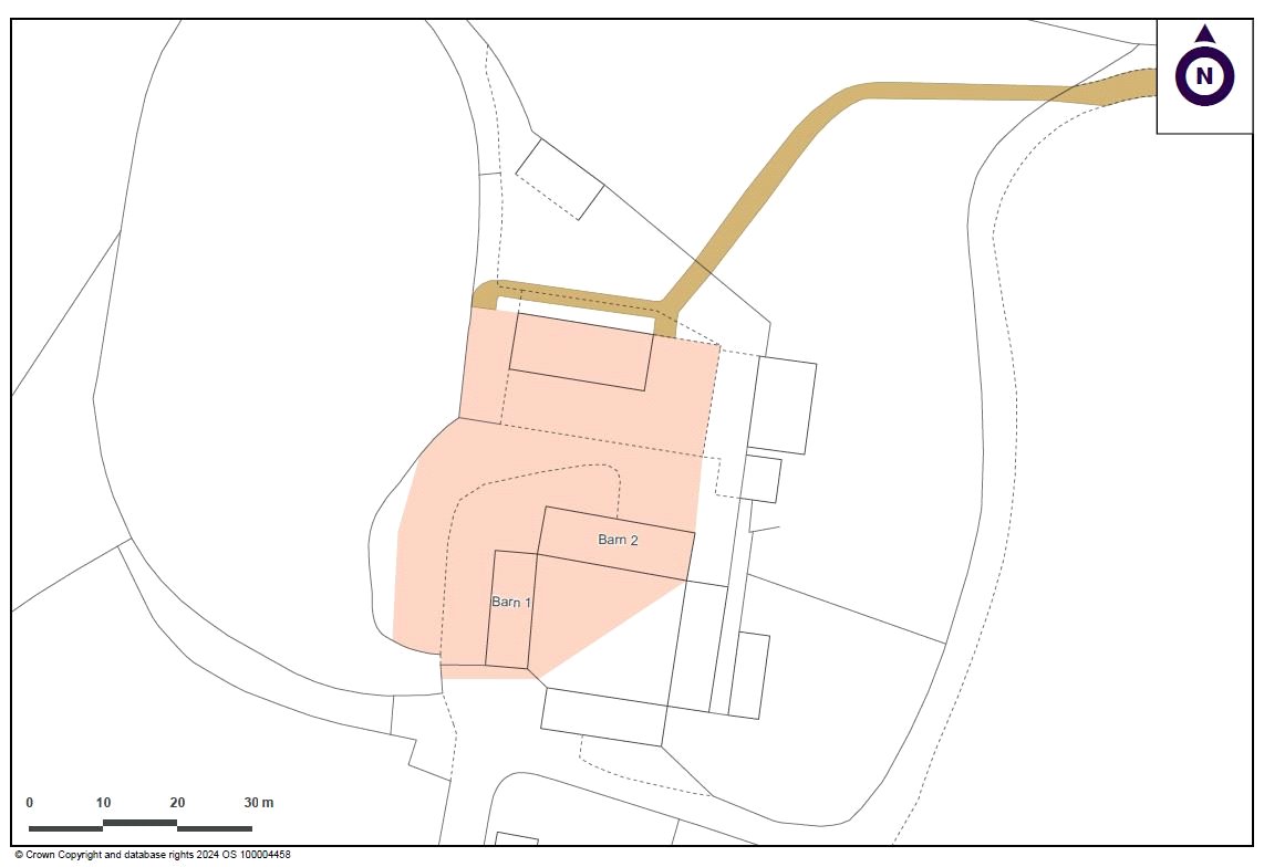
The property consists of the following:

Permitted Barn Conversions:
Barn 1 extends to circa 180 sqm over two floors. The proposed plans on the ground floor include three bedrooms, one ensuite and one bathroom. On the first floor there is a generous open plan kitchen with dining area, a sitting room and a galleried landing.

Barn 2 extends to circa 260 sqm over two floors. The ground floor includes four bedrooms, one ensuite and one bathroom. The first floor includes a large kitchen, dining room, galleried landing and a sitting room.

Both barns will benefit from a generous private garden, shared courtyard and private garage.

The Barns retain a wealth of traditional features including exposed rafters and beams.

Location
The property is located off a private drive within open countryside on the outskirts of the popular village of Bicton.

Amenities
The village of Bicton lies approximately 3 miles west of the market town of Shrewsbury. Bicton benefits from a Primary School, Public House, Church, Bus Service, Shop and Fuel Station. The market town of Shrewsbury offers a wide range of shopping facilities, public houses,
primary, secondary and private schools.

Method of sale
The property is offered for sale by Private Treaty.

Tenure & Possession
Freehold and vacant upon possession.

Planning
Bicton House Barns at Grade II Listed. Planning and listed building consent was granted under reference 21/01345/FUL and 21/01346/LBC for the conversion of the traditional barns into three residential units with detached garages. This sale is limited to Barn 1 and 2.

The permitted plans can be viewed on the Shropshire Council Planning Portal.

Drainage
New treatment plant to be installed as part of the planning and listed building consent.

Services
Mains water and electricity.

Wayleaves, Easements & Rights of Way
A right of way will be granted over Bicton House Drive. A new track will require construction over retained land between the existing drive and the barns. A right of way will subsequently be granted over this land.

Health & Safety
Viewings to be undertaken at your own risk with no liability to Carter Jonas or the seller.

Local Authorities
Shropshire Council, Shirehall, Abbey Foregate, Shrewsbury, SY2 6ND

Viewings
Viewing strictly by appointment with the selling agent.

Directions
Travelling west along the B4380, pass Bicton Lane on your right. On your left you will see the driveway to Bicton House marked with a For Sale Sign.

What 3 Words
/// excusing.items.events

The next steps...

Before making an offer on a property you will want to consider your financial situation, your income and outgoings.

Will you finance the purchase of your next property from the sale of an existing property which can put you in a chain, arrange a mortgage through your bank or buy the property outright.

To help you finance your next property purchase, we have a long established relationship with an independent mortgage broker who can discuss your situation with you.

Remember that having a 'mortgage decision in principle' can make you a more attractive buyer when you make an offer on a property. Contact our mortgage advisers for free, no obligation and impartial advice.

Some advantages of a broker are:

  • They do all the legwork for you, working on your behalf with the lender
  • They compare wholesale mortgage rates from a large number of banks and lenders all at once
  • Their wholesale interest rates can be lower than retail (bank branch) interest rates
  • They offer more loan options because they work with numerous banks and lenders
  • They can finance tricky deals because of their knowledge and various lending partners
  • They are typically easier to get in contact with, and are less bureaucratic.

However advantages of working with your bank are:

  • You may be able to build off an existing relationship (and gain discounts if you have a checking or savings account)
  • You may already know the banker who will handle your mortgage
  • Banks may be more accountable than a smaller shop
  • They may offer lower interest rates in some cases
  • Their ability to add mortgage to existing banking profile and make automatic payments from linked account.

When you see a property you are interested in on our website, call us 24/7 to arrange a viewing. Or if you prefer, get in touch via our website and we will call you back to find a time to view the property that suits you.

Once you’ve found a property you want to buy, it’s time to make an offer. A bit of negotiation is to be expected, however don't offer so little that you end up in a lengthy negotiation process, as you might lose the property altogether if someone else makes a higher bid.

If other offers have been made on a property we aren't legally able to tell you what they are, but we may indicate if they were close to the asking price.

If you have a property to sell, why not see how we can help you.

Or if you’re considering letting your property, we can take the stress out of managing your rental, and our award winning lettings team offer a service that can be tailored to your needs.

Combined with nearly 170 years of experience and one of the highest customer satisfaction scores in the industry, Carter Jonas is the perfect property partner.

Why not book a free, no obligation valuation of your property and find out how Carter Jonas can help you make your next move.

Key property details
Locality
Rural
Carter Jonas reference
SYR240030
Thinking of selling?

Find out what your property is worth